house-img-duo

CASA Dúo

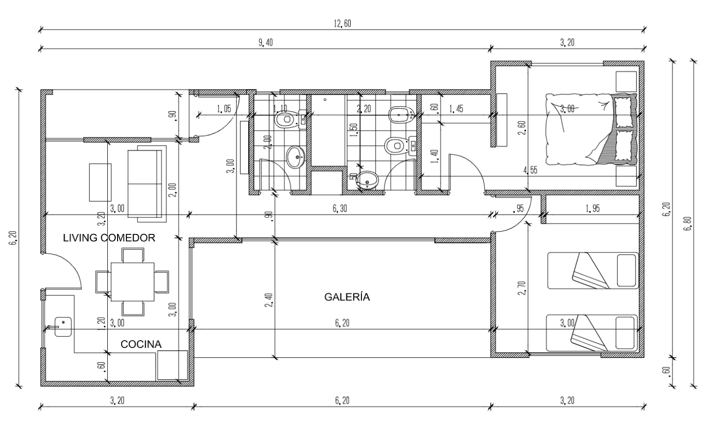
Vivienda de 60 m² pensada para familias en expansión o quienes buscan una casa funcional y flexible, con ambientes bien aprovechados para el uso cotidiano.

Cuenta con dos dormitorios, un baño completo y un toilette, además de una cocina-comedor integrada que optimiza la circulación y la luminosidad. Construida con sistema Steel Framing, ofrece confort térmico y acústico, eficiencia energética y la posibilidad de adaptarse a futuras necesidades.

CARACTERÍSTICAS

Superficie

60 m²

  • 2 dormitorios
  • 1 baño completo + 1 toilette
  • 1 cocina/comedor

Materiales

Trabajamos con estructuras metálicas de acero soldado y revestimientos de Steel framing, con aislaciones térmicas y acústicas en paredes y cielorrasos y cuidamos cada detalle en las terminaciones interiores. Además podes elegir distintas opciones de equipamiento y mobiliario para personalizar tu espacio.

Construimos en nuestro taller y lo transportamos a donde necesites.

logo-saint-gobain

Dúo

PLANO

Precio

USD 63.000

+ iva

Opcional: Galería Dúo | 15 m²

USD 5.250

+ iva

Opcional: Galería Magna | 24 m2

USD 8.500

+ iva

aclaraciones

  • El cliente deberá realizar en el lugar las obras de acometidas: eléctrica, de gas, de agua, desagües, biodigestor
  • En caso de que el cliente elija una opción estandarizada, Neobox ejecutará, si se requiere, los planos de arquitectura y estructura (no se incluye el costo de aprobación en COPAIPA o autoridad competente).
  • No se incluye, además, el costo del proyecto y la aprobación en COPAIPA correspondiente a los planos de instalación eléctrica.
  • El transporte se cotizará en función a la distancia del terreno.
  • Incluimos mesada con bacha y muebles en cocina, griferías, artefactos de baño, placard en dormitorio, termotanque e instalaciones embutidas.

HABLEMOS DE TU PROYECTO

Form-NEO-home

Este sitio está protegido por reCAPTCHA y aplican la Política de privacidad y los Términos de servicio de Google.